AlICe

Research →
Teaching →
Media →
Title
Year
Research Internship: Ian Bertin (IMT Mines Alès)
2026
Research Residency: Christian Bélanger (ULaval)
2025
[x] Stoclet Palace’s kitchen: 3D restitution hypothesis (1911)
2025
AlICe lab 1994-2024: 30 Years – 30 Projects & Artifacts
2024
San Carlino’s Re-presentation: Between The Geometric Lines, the Blurry Space of the Architectural Project.
2024
Formal Analysis and Computer Process - Algorithmic Music III/III
2024
Beyond the narrative: a workflow for 3D restitution of built heritage
2024
The Missing Camera or: How I Learned to Stop Worrying and Love Oblique Projection
2024
Relics of Electronic Hallucinations. Gazing at Early Computational Fluid Dynamics Drawings from Los Alamos Nuclear Research Center
2024
Architectural Analysis, Survey and Documentation of Built Heritage
2024
Rules, A Short History Of What We Live By, A book by Lorraine Daston
2024
Survey and characterisation of the archaeological landscape of Lovo
2024
Stoclet 1911 - Restitution
2024
Stoclet 1911 - Hypothesis
2024
TV Show: 3D Digitization and Built Heritage Preservation
2024
Drawing air: the evolution of the representation of air in architectural drawing from the industrial revolution to the present
2023
Architectural Analysis, Survey and Documentation of Built Heritage
2023
Analysis, Systems & Composition
2023
Code Tracing
2023
Maison du Peuple full scale experience on its original site
2023
From projection to building and vice versa
2023
Emergence of pre-digital algorithmic design
2023
Comparing Randomness
2023
Anthropic Units in Baroque Architecture, the Gallery of the Palazzo Spada and the Roman Palm
2023
Workshop Glyph
2023
Re-presentation as an analytical tool in Baroque Architecture
2022
Crossed Experimentations of Low-Altitude Surveys For The Detection Of Buried Structures
2022
Chamber Music Hall of Horta's Palais des Beaux-Arts: 3D Hypothesis
2022
Formal Analysis and Computer Process - Algorithmic Music II/III
2022
Misreading, once again...
2022
Perspectives on Dwelling : Architectural Anthropologies of Home
2022
Workshop (fig.22)
2022
Towards a multi-scale semantic characterization of the built heritage
2021
De l'incarnation de la protoarchitecture
2021
Formal Analysis and Computer Process - Algorithmic Music I/III
2021
Noise
2021
(Close) Reading Morphosis
2021
Jeu d’échelles / échelles du jeu
2021
Workshop (fig.)
2021
Perspectiva Virtualis
2021
Architectural Analysis, Survey and Documentation of Built Heritage
2020
Exploitation des numérisations pour l'analyse urbaine en contexte archéologique
2020
Formal Analysis and Computer Process - The Algorists
2020
Urban Planning Representation
2020
Projection built into Sketchpad III: origin of a critical field in computer graphics
2020
Architectural Analysis, Survey and Documentation of Built Heritage
2019
Exploitation de numérisations hétérogènes pour la représentation et l'analyse d'un site archéologique de grande échelle : Pachacamac 1532
2019
Relecture de vocabulaires d’architecture : apport de la complexité des représentations numériques dans la caractérisation de formes architecturales
2019
Victor Horta's Maison du Peuple 3D restitution hypothesis
2019
Architectural Analysis and Graphic Representation - Morphosis in the 1980s
2019

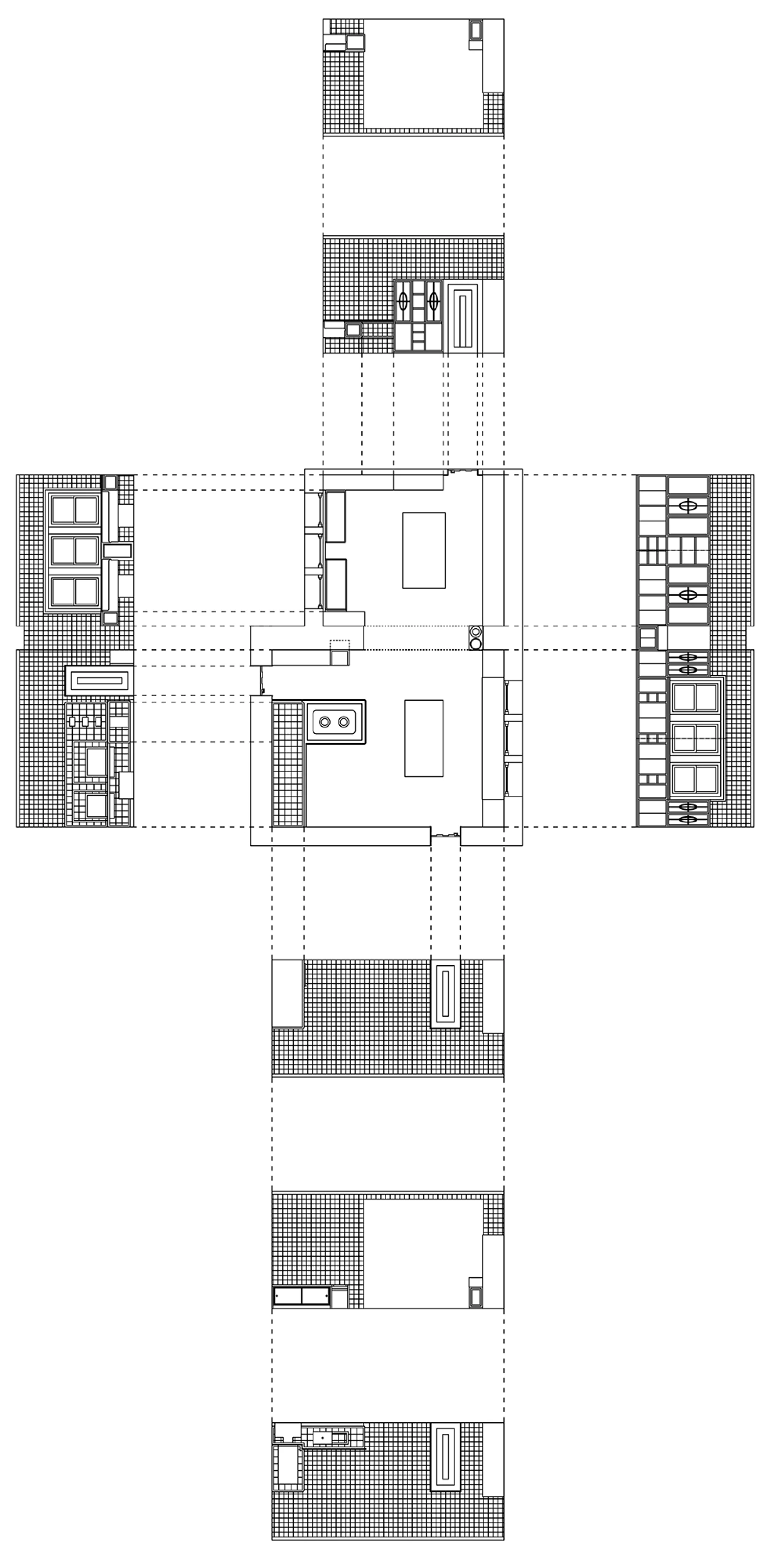
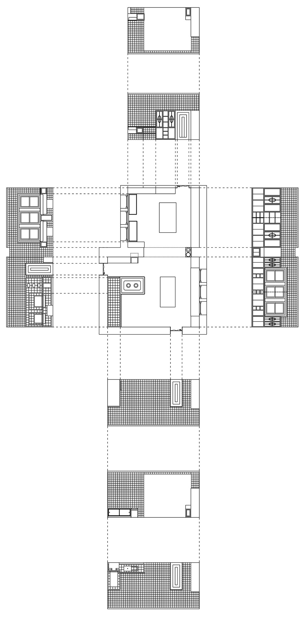
Stoclet Palace’s kitchen: 3D restitution hypothesis (1911)

Supervisor: David Lo Buglio

Submitted on September 2025

Original title: Le Palais Stoclet de Josef Hoffmann : Hypothèse de restitution numérique de la cuisine à son état de 1911.

This master’s thesis proposes a digital restitution hypothesis of the Stoclet Palace's kitchen, designed by the architect Josef Hoffmann. A major work of the Viennese Secession and listed as a UNESCO World Heritage Site since 2009, the interior of the building remains largely unknown to the general public. Developed as a continuation of the research project “Stoclet 1911 – Restitution”, conducted in collaboration between urban.brussels and the ULB – Faculté d’Architecture La Cambre-Horta, this thesis focuses on a secondary yet functionally essential space of the palace that has been less documented than its well-known ceremonial rooms. The study is based on the precise analysis of a heterogeneous corpus of archival sources, including historical photographs, technical drawings, and written records from Belgian and Austrian archives. It aims to produce a realistic 3D restitution of the kitchen (representing a hypothetical state of the room between 1911 and 1918 rather than its current condition), thereby reinforcing the immersive quality of the model. Particular attention is given to the methodological process, from archival interpretation to digital modeling and visual restitution. Furthermore, the research addresses the challenges of incomplete and fragmented documentation by assessing and representing uncertainty. This is achieved through the use of evaluation scales – such as degrees of certainty and distance to sources – allowing each element of the model to be critically qualified.